United Yards Brewery
Activating a forgotten space to engage community through food, drink and more

Location
Chicago IL
Back of the Yards
Status
Design
Size
7,100 SF
Client
Celadon Partners
Contractor
Skender Construction
Type
Commercial
Hospitality
Planning
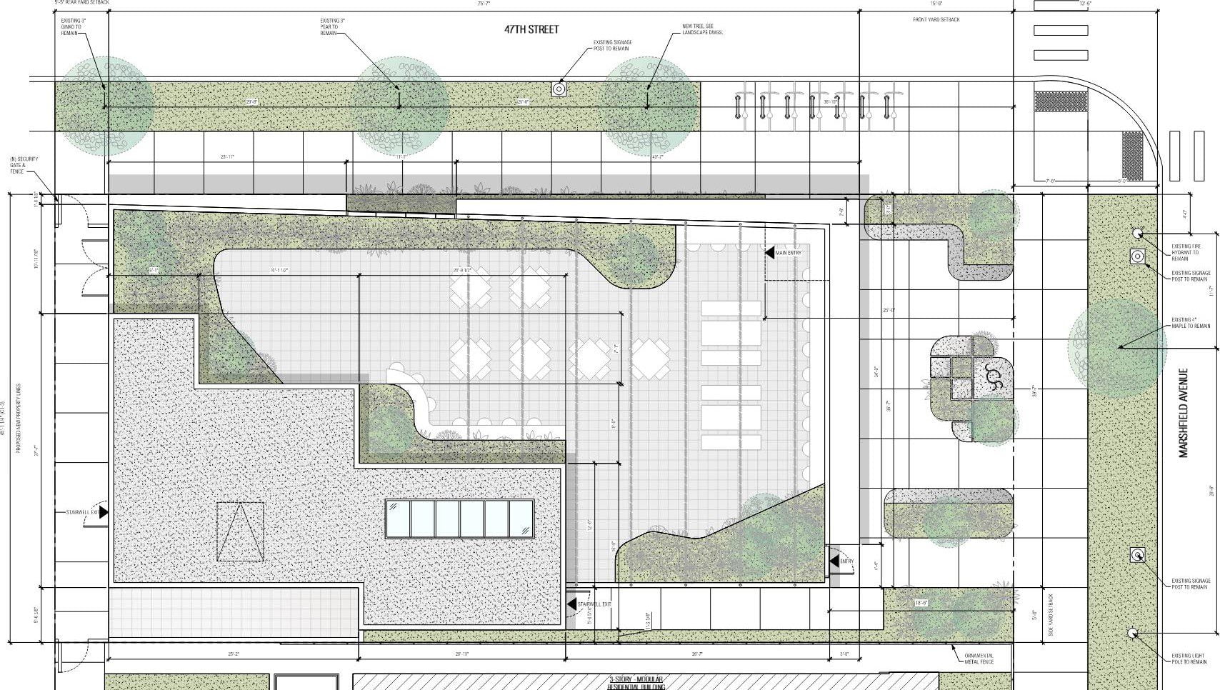
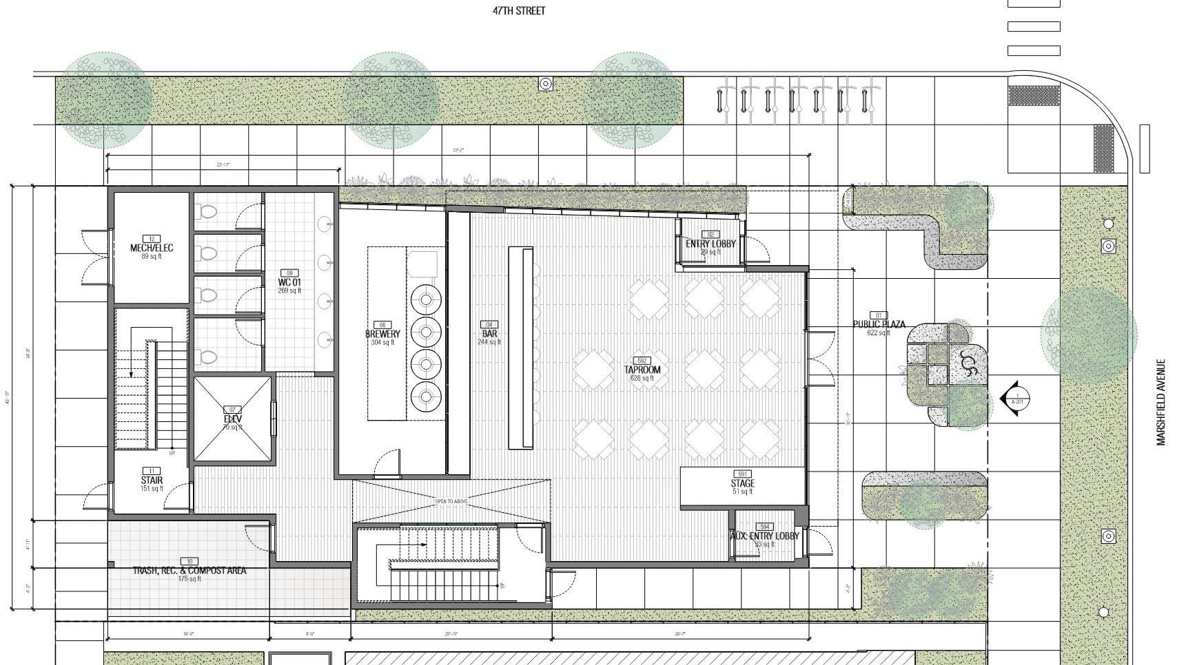
A part of the United Yards Master Plan, the project transforms an empty parking lot into a community space encompassing retail, meeting and performance programs. A brewery and taproom will occupy the ground level alongside a public plaza. These will visually connect to the upper floors activated by a rooftop garden and event space.
News
Collaborators
2im Group
Interface Engineering
Site Design Group
Virgilio & Associates





