105 W Adams
Transforming a downtown classic into a sophisticated and affordable housing option

Location
Chicago IL
The Loop
Status
Design
Size
184,014 SF
Client
Celadon Partners
Contractor
TBD
Type
Adaptive Reuse
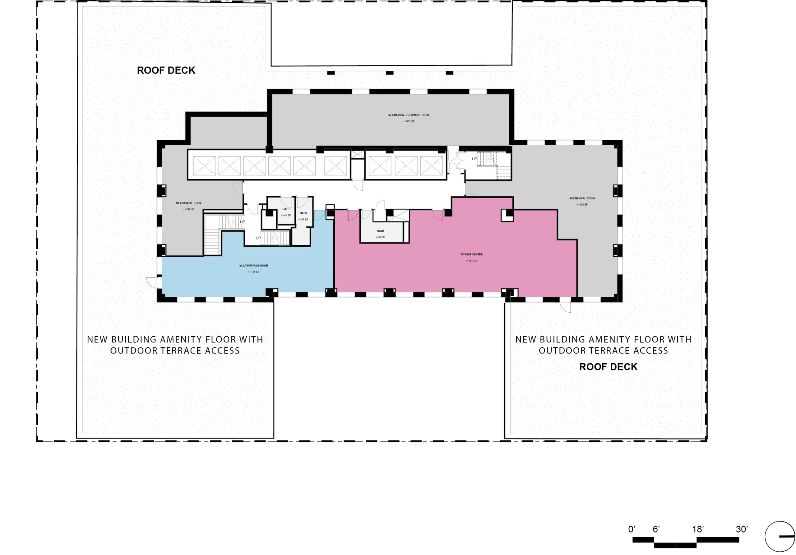
The adaptive re-purposing of this existing office building will transform it into a mixed-use development providing affordable studio, one-bedroom, two-bedroom, and three-bedroom apartments and market-rate variants. The restoration will preserve the building’s historic façade as well as the character of the exterior and interior spaces while integrating new efficient building systems to bring it into the 21st century.
The introduction of a new, two-story kitchen and market will provide a neighborhood-centric grocery reactivating the building’s retail base and provide much-needed food access that support new residential programs across The Loop. A new entry canopy, minimal in appearance and design, helps to mark the building’s residential entrance along Clark St and provides a new sheltered entrance for the building’s residents.
Collaborators
Blackwood Group










